Chalet Golden Eagle

   Sleeps: 10

Available as: Catered

  • WiFi
  • Boot Warmers
  • TV Room

Quality catered chalet for up to 10 guests in the heart of the Three Valleys ski resort.

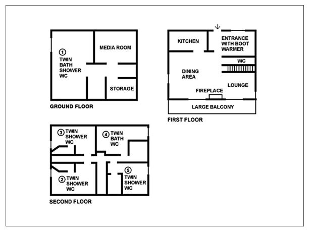
Located in easy reach of the main village and the superb Aquamotion center, Chalet Golden Eagle accommodates up to 10 guests across five en suite bedrooms. Welcomed in to a large entrance, the chalet provides an open plan dining, living space, separate TV snug and generous balcony offering incredible views of the Courchevel valley.

Not only does the quality finish and layout ensure its place within our collection but a good level of catering is also included. You can set off after a hearty breakfast and sit back, relax and enjoy a delicious freshly prepared meal at the end of the day.

The buzz of the main village is a short stroll up to the bars and restaurants with the free shuttle bus stop also in easy reach.

Chalet Golden Eagle is available as catered accommodation only without transport or can be combined as a package with London Gatwick or Manchester flights and transfers. The chalet may be booked by room/ person or as the whole chalet, availability allowing.

If you are travelling as part of a much larger group, Chalet Eagle’s Nest is right next door making it perfect for another 10 guests.

 

Bedrooms

Towels are provided. A mid week towel change is also included.

ROOM 1: Large Twin, en suite with bath, separate shower and WC (£50pp supplement)

ROOM 2: Twin, en suite shower and WC

ROOM 3: Twin, en suite shower and WC

ROOM 4: Twin, en suite bath and WC

ROOM 5: Twin, en suite shower and WC

Wine & Dine

Upgraded wine options are available. Please ask for details.

  • Cooked breakfast 5 days a week. Continental left out on the staff days off
  • Afternoon tea with selection of hot drinks & baked goods
  • 3 course evening meal (5 nights) followed by coffee & mints
  • Unlimited wine throughout dinner
  • Cheeseboard once a week
  • Champagne reception with canapes on the first & last evenings
  • Local Methode Champenoise each other catered evening
Icon

Contact Us To Book

Available 24/7
CALL US: (44)  0345 021 0022

Enquire
Icon

Book With Confidence

In these uncertain times please be assured we have cancellation policies in place with all our suppliers. Most will offer a full refund or the option to transfer to another date. We will send all our guests the Terms & Conditions of the accommodation and ensure guests are happy before confirming your stay.

In addition, we are a fully Financially Bonded agent through the Travel Trust association. In the unlikely event of failure of any of our suppliers, or indeed us, they will repay up to £11,000 per person. Please see the link for further information.

Tailored Services

We’re here to create your perfect ski holiday. So whether you want us to have your ski passes waiting for you, arrange transfers, book nannies, arrange lessons, chefs or insurance, we can help.

From airport upgrades through to private yoga or massage, we have you covered.

You may also like

Speak to our expert, Kim

+44 345 021 0022

Email about a ski holiday

Enquire

Subscribe to our newsletter

Sign up

© 2026 Signature Ski Ltd.   Terms  |  T&Cs  |  Privacy

Website by Yello Media

Update cookies preferences