Chalet Raoul

   Sleeps: 8

Available as: Catered

  • WiFi
  • Fireplace

Stylish catered chalet for up to 8 guests with stunning views.

Whilst Chalet Raoul may not tick as many boxes for facilities as some of our uber luxurious chalets we felt it was well worth including. A perfect family style layout, stylish, comfortable decor and a great location in this snow sure resort with lots of other bonus features.

Set in a peaceful location with large south facing windows, plenty of space to soak in the views on the balconies, Chalet Raoul rests at 1830m just above Tignes Les Boisses. It is an easy 50m to the nearest bus stop, making it an easy route into Tignes Le Lac.

The catering is all taken care of so you can start the day with a hearty breakfast and end on a delicious meal with glass of wine.

Chalet Raoul is available with travel independently or if preferred as a package with LGW or MAN flights and coach transfers. Private transfer options are also available ensuring you can choose the most convenient start to the mountains for your family.

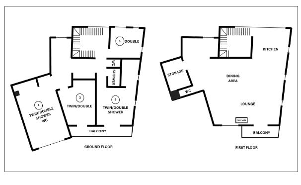
Bedrooms

Towels and hairdryers are provided, mid week towels change included.

ROOM 1: Double

ROOM 2: Twin/ Double with shower and balcony

ROOM 3: Twin/ Double with balcony

ROOM 4: Twin/ Double with shower and WC

2 Separate WC’s and a bathroom with shower

Wine & Dine

Upgraded wine options are available. Please ask for details.

  • Cooked breakfast 5 days a week. Continental left out on the staff days off
  • Afternoon tea with selection of hot drinks & baked goods
  • 3 course evening meal (5 nights) followed by coffee & mints
  • Unlimited wine throughout dinner
  • Cheeseboard once a week
  • Champagne reception with canapes on the first & last evenings
  • Local Methode Champenoise each other catered evening
Icon

Contact Us To Book

Available 24/7
CALL US: (44)  0345 021 0022

Enquire
Icon

Book With Confidence

In these uncertain times please be assured we have cancellation policies in place with all our suppliers. Most will offer a full refund or the option to transfer to another date. We will send all our guests the Terms & Conditions of the accommodation and ensure guests are happy before confirming your stay.

In addition, we are a fully Financially Bonded agent through the Travel Trust association. In the unlikely event of failure of any of our suppliers, or indeed us, they will repay up to £11,000 per person. Please see the link for further information.

Tailored Services

We’re here to create your perfect ski holiday. So whether you want us to have your ski passes waiting for you, arrange transfers, book nannies, arrange lessons, chefs or insurance, we can help.

From airport upgrades through to private yoga or massage, we have you covered.

You may also like

Speak to our expert, Kim

+44 345 021 0022

Email about a ski holiday

Enquire

Subscribe to our newsletter

Sign up

© 2026 Signature Ski Ltd.   Terms  |  T&Cs  |  Privacy

Website by Yello Media

Update cookies preferences